Zapytanie ofertowe
Rejon Obsługi Mieszkańców Nr 2 w Gliwicach przy ul. Zabrskiej 15 zaprasza do składania ofert na sprzedaż części wspólnej nieruchomości Jagiellońska 27
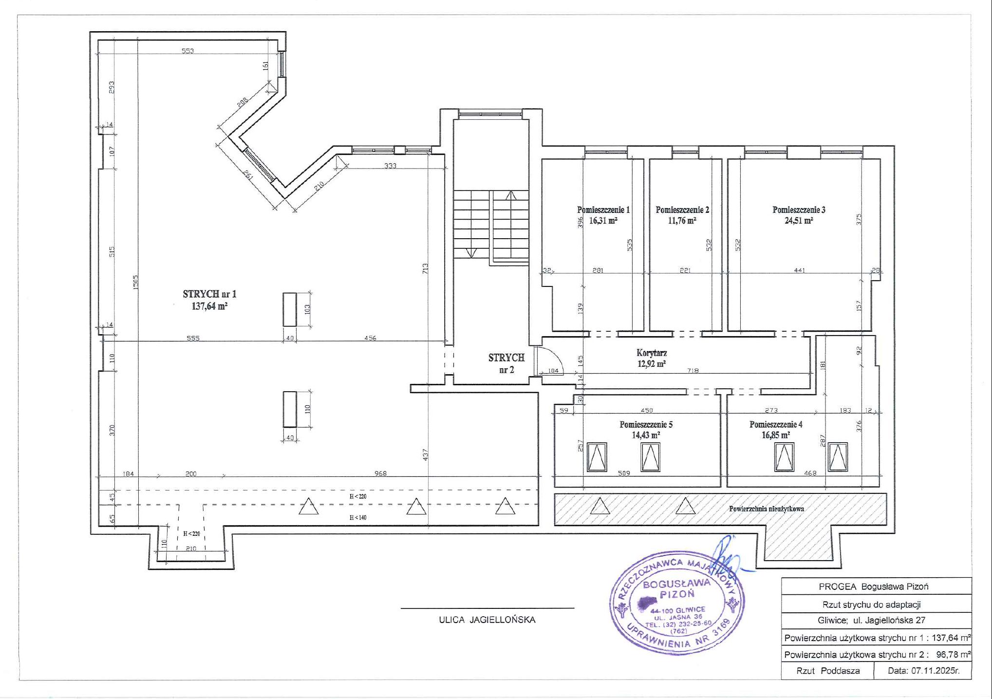
Adaptacja dwóch strychów w budynku frontowym na cele mieszkalne
– cena minimalna strychu o powierzchni użytkowej 137,64 m2 – 2.391,02 zł/m2 – 329100,00 zł
-cena minimalna strychu o powierzchni użytkowej 96,78 m2 – 2849,76 zł/m2 – 275.800,00 zł na podstawie operatu majątkowego.
Przed wyceną konieczna wizja lokalna, dostęp do strychu możliwy poprzez ROM-2 Zabrska 15
Termin składania ofert do dnia 25.02.2026, miejsce ROM-2 Zabrska 15
Ważność oferty 30.04.2026
